10
$13 Rent
Listed 9 hours ago
2950 Miners AVENUE
· 0
· 0.0
· 0
· 40000
Key Facts
Key facts for 2950 Miners AVENUE
Property Type
Commercial
Parking
Garage: No, 0 parking
MLS #
SK020657
Size
40000 sqft
Basement
-
Listed on
-
Lot size
-
Tax
-
Days on Market
-
Year Built
2024
Maintenance Fee
-
Description
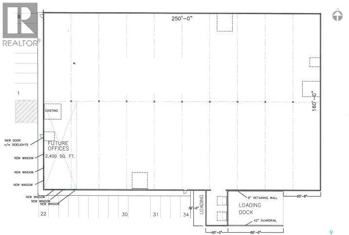
40,000 SF newly constructed warehouse available for lease. Building is located on 2.63 acre site which includes secure, graded and compacted yard. Building includes 4 x grade level OH doors with ability to add dock level loading as required. Store front with paved parking at front of building facing... Miners Ave. High voltage + amperage power available. IH Zoning. Building is well suited for a variety of uses. Centrally located in Saskatoon's North Industrial Area, just north of 51st St. This site offers easy access to Idlwyld Dr. and Hwys 11, 12 + 16. (id:10452)
Similar Properties (No results)
Listing courtesy of: RE/MAX Saskatoon
This REALTOR.ca listing content is owned and licensed by REALTOR® members of The Canadian Real Estate Association.